't Westdorp

heerlijk recreëren op de Veluwe

Home | Minicamping | BoerenSpelen | Arrangementen | HuurAccommodatie | Klederdracht | Escaperoom

     

Campingvelden

Huuraccommodatie

Sanitairgebouw

Recreatieruimte

Bedstee

Tarieven

Privacyverklaring

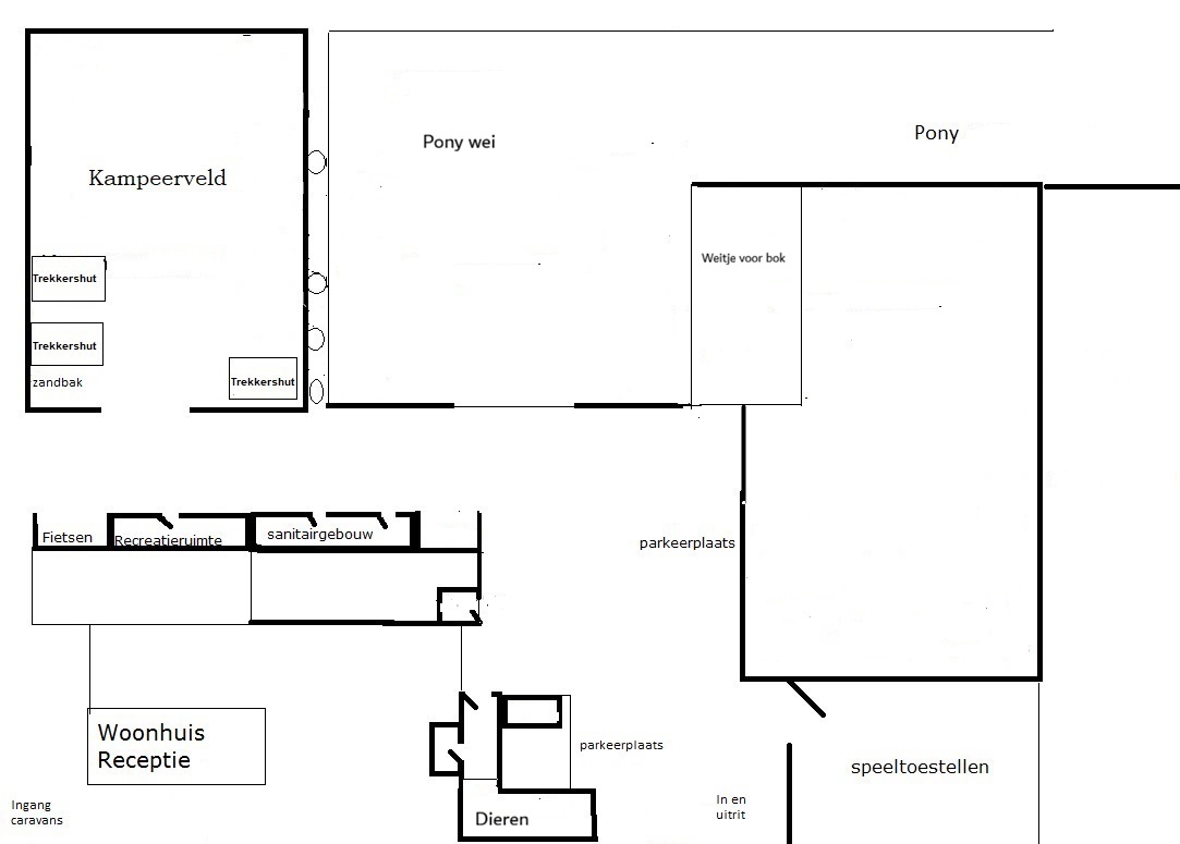
Plattegrond

Route

Contact

Omgeving

 

Plattegrond camping velden